São Paulo - SP | Lote/Terreno Limão Residencial | Ref.: REO1147844

Venda R$ 1.300.000,00

  • 800m² AU
    800m² AT

Quero mais informações


Características do imóvel

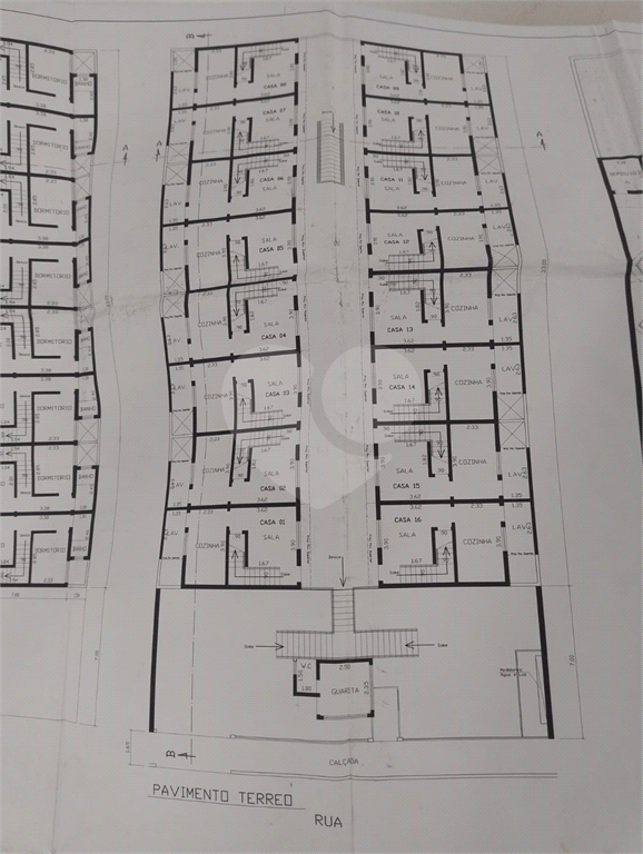
Terreno à Venda 800 m² São Paulo, Zona NorteOportunidade rara para investidores e construtoras!Terreno amplo, com 20 metros de frente e 40 metros de fundos, totalizando 800 m², localizado em uma das regiões mais promissoras da Zona Norte de São Paulo.A área possui excelente potencial construtivo, sendo ideal para implantação de até 16 assobradados destinados à venda, garantindo ótimo retorno financeiro. A localização estratégica oferece fácil acesso a comércios, transporte público, escolas e toda infraestrutura urbana necessária para um empreendimento de sucesso.Destaques do imóvel: 20 m de frente 40 m de profundidade 800 m² de área total Localização privilegiada na Zona Norte Potencial para construção de 16 assobradados Excelente investimento para incorporadores e construtoresSe você busca um terreno com alto potencial de valorização e retorno, esta é a oportunidade ideal.Entre em contato para mais informações ou para agendar uma visita.


Mapa da Localização aproximada


ATENÇÃO: As informações aqui constantes são fornecidas pelo proprietário do imóvel e estão sujeitas a alterações a qualquer momento. A conclusão da venda e compra e/ou a concessão de financiamento dependerá da análise da documentação das partes e do imóvel.